廣州梓凈熱線:13928758616

傳遞窗
當前位置:首頁 >> 空氣凈化設備 >> 傳遞窗 >> 風淋式傳遞窗風淋式傳遞窗也叫風淋式凈化傳遞箱或者風淋式傳遞柜,傳遞窗是一種潔凈室輔助設備,風淋式傳遞窗主要用于潔凈室和非潔凈區之間或不同等級不同壓力的潔凈室之間傳遞小物件的設備,一方面起到氣閘的作用,不讓高級別的潔凈室中高壓被泄壓,另一方面在傳遞過程中實現吹淋效果,以確保進入潔凈區的物品的自身潔凈,減少物件帶來的交叉污染;其吹淋時間可根據實際需要在1分鐘內任意調節,大限 …
風淋式傳遞窗也叫風淋式凈化傳遞箱或者風淋式傳遞柜,傳遞窗是一種潔凈室輔助設備,風淋式傳遞窗主要用于潔凈室和非潔凈區之間或不同等級不同壓力的潔凈室之間傳遞小物件的設備,一方面起到氣閘的作用,不讓高級別的潔凈室中高壓被泄壓,另一方面在傳遞過程中實現吹淋效果,以確保進入潔凈區的物品的自身潔凈,減少物件帶來的交叉污染;其吹淋時間可根據實際需要在1分鐘內任意調節,大限度的達到吹淋及節能的效果。
什么是風淋式傳遞窗?風淋式傳遞窗就在是普通傳遞窗的基礎上增加了高效過濾送風系統,風淋式傳遞窗是根據風淋室模式設計,使風經過高效過濾器潔凈后由不銹鋼噴嘴以20m/s以上的風速噴射。凈化效果顯著,使用性強。
風淋式傳遞窗是提供局部無塵、無菌的高潔凈工作環境的設備,能滿足醫療、生物制藥、電子光學、化工、食品、精密儀器儀表、科研等行業對工作環境的特殊要求。送風機需選用低噪音,同 時配備紫外線殺菌燈,使得本產品更安全、更可靠。
風淋傳遞窗流程:打開傳遞窗外門(傳遞窗內門上鎖),把物品放置傳遞窗內,再關閉傳遞窗外門,自動起動風淋,風淋計時完閉打開內門取出物品(傳遞窗外門上鎖)。
“梓凈”牌風淋式傳遞窗|風淋式凈化傳遞箱|風淋式傳遞柜特點:
1、風淋式傳遞窗采用更適合潔凈室原理的圓弧轉角設計。
2、風淋式傳遞窗由箱體、外壁為冷軋鋼板噴塑,風機、初效過濾器、高效過濾器、控制板等幾大部件組成。
3、風淋式傳遞窗內部工作臺面采用不銹鋼板,箱體表面采用冷板噴塑(采用多層酸洗技術,靜電無塵噴塑處理)或全不銹鋼板制作,工作區采用不銹鋼板,平整光潔耐磨。
5、風淋式傳遞窗兩側門設有機械互鎖或電子互鎖裝置,確保兩側門不能同時處于開啟狀態
6、風淋式傳遞窗窗風嘴出風口風速高達20s以上,可根據客戶要求安裝壓差表或箱體兩側裝對講機,使箱體兩方拿送方便。
7、采用無隔板高效過濾器,EVA密封條材料,密閉性能高,過濾效率為:99.997%,確保凈化級別
8、風淋傳遞窗可以采用紫外線殺菌燈或臭氧條菌(特別適合于食品行業和醫藥行業,臭氧殺菌原理:臭氧是一種廣譜殺菌劑,可殺滅細菌繁殖體和芽孢、病毒、真菌等,并可破壞肉毒桿菌素,臭氧在水 中殺菌速度比氯快得多,是氯的3000倍)。
9、風淋式傳遞窗采用進口電子元器件,性能可靠
10、可配對呼式對講機
11、考慮到風淋傳遞窗使用壽命,建議將風淋傳遞窗至于十萬級或潔凈度更高的潔凈區域中使用。
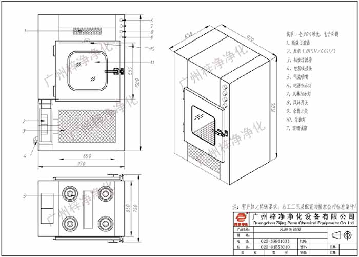
風淋式傳遞窗|風淋式凈化傳遞箱|風淋式傳遞柜圖解說明:
1、無隔板高效過濾器
2、氣流噴嘴
3、帶互鎖的門
4、玻璃密封條
5、門把手
6、夾膠玻璃
7、鉸鏈
8、初效過濾器
9、大風量風機
風淋式傳遞窗規格尺寸及技術參數:
風淋式傳遞窗|風淋式凈化傳遞箱|風淋式傳遞柜:
風淋式傳遞窗使用相關注意事項,包括檢修,吹淋流程,吹淋控制,如何開啟使用紫外線殺菌燈裝置。
傳遞窗安裝檢修:內外門同時打開,照明燈亮。此時“照明”按鍵無效,內外門指示燈同時亮表示內、外門同時打開。
風淋式傳遞窗正常工作:打開外門:照明燈亮,此時蜂鳴器將發出連續的“嘟,嘟,嘟,嘟”振鈴提示音,告知對方有貨物送到,同時內門鎖開啟以防止灰塵或細菌進入內部;當貨物放入窗口后關上外門,這 時系統自動進入吹淋過程。
風淋式傳遞窗吹淋流程:當系統進入吹淋流程時,內外門同時開啟,延時1~2秒后風機啟動對貨物進行吹淋,吹淋過程進行大約10秒鐘(可設置),吹淋結束后風機停止,同時內外門關閉,這時 可以開門取出已去塵或者去塵以及殺菌的貨物。